Józefów

Dom na sprzedaż

Opis nieruchomości

Oferujemy do sprzedaży połówkę bliźniaka o powierzchni całkowitej 133 m2, na działce ok. 440 m2, wybudowany w 2023 roku, zlokalizowany w Józefowie.

Stan deweloperski
 
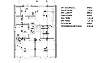
PARTER: salon z aneksem kuchennym plus pokój, łazienka, hol.
PIETRO: 3 pokoje dwie łazienki, hol.

poddasze użytkowe (strych) -  20 m2.

Dwa miejsca parkingowe zewnętrzne.

Sciany silikat, konstrukcja betonowa, stropy lane betonowe pod budynkiem ławy betonowe.

Dwie częsci budynku oddzielone ścianą dzwiękochłonną.

Okna trzyszybowe w salonie przesuwne, ocieplenie styropian grafitowy tynk silikonowy strukturalny, dach blacha na rąbek.

W środku budynek do samodzielnego wykończenia i adaptacji, doprowadzone do środka budynku, woda miejska, kanalizacja miejska, gaz, elektryczność.

Ogrodzenie, podmurówka betonowa, siatka panelowa, brama przesuwna 6 metrów, furtka systemowa.

Obecnie trwają prace wykończeniowe do stanu deweloperskiego.

Nota prawna

Prezentowane ogłoszenie nie stanowi oferty w rozumieniu art. 66 Kodeksu Cywilnego. Dokładamy wszelkich starań, aby informacje dotyczące oferowanych nieruchomości były w miarę możliwości dokładne i aktualne. Ponieważ jednak z różnych powodów nie zawsze dają się zweryfikować, firma Brzozowski Nieruchomości nie ponosi odpowiedzialności za ich dokładność i aktualność.

Szczegóły oferty

Symbol oferty BRZ-DS-164104
Powierzchnia 133,00 m²
Powierzchnia użytkowa 122,00 m²
Powierzchnia działki 440 m²
Liczba pokoi 5
Rodzaj domu bliźniak
Technologia budowlana silikat
Wymiary działki m
Garaż miejsce postojowe
Stan prawny Własność
Stan budynku do wykończenia
Rok budowy 2023
Gaz jest
Woda tak - miejska
Prąd jest
Kanalizacja miejska

Kalkulator kredytowy

PLN
%
Wysokość raty

Kalkulator kosztów

PLN
PLN
PLN
PLN
PLN
PLN
%
PLN
Podatek od czynności cywilno-prawnych
Taksa notarialna (opłata notarialna)
VAT od taksy notarialnej (opłaty notarialnej)
Wniosek do WKW
VAT od wniosku do WKW
Prowizja agencji nieruchomości
VAT od prowizji agencji nieruchomości
Wypisy aktu notarialnego - około
RAZEM (cena + opłaty)

Napisz do nas

Proszę wypełnić to pole
Proszę wypełnić to pole
Proszę wypełnić to pole
Proszę wypełnić to pole
Trwa wysyłanie...

Ta strona wykorzystuje pliki cookies w celach statystycznych oraz w celu dostosowania naszych serwisów do indywidualnych potrzeb klientów. Zmiany ustawień dotyczących plików cookie można dokonać w dowolnej chwili modyfikując ustawienia przeglądarki. Korzystanie z tej strony bez zmian ustawień dotyczących cookies oznacza, że będą one zapisane w pamięci urządzenia.

rozumiem