Warszawa, Wawer, Zerzeń

Dom na sprzedaż

Opis nieruchomości

Oferujemy do sprzedaży segment środkowy o powierzchni całkowitej 120 m2, na działce ok. 200 m2, wybudowany w 2025 roku, zlokalizowany w Wawrze (Zerzeń), w rejonie ulicy Cyklamenów.
Stan deweloperski
 
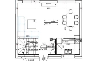
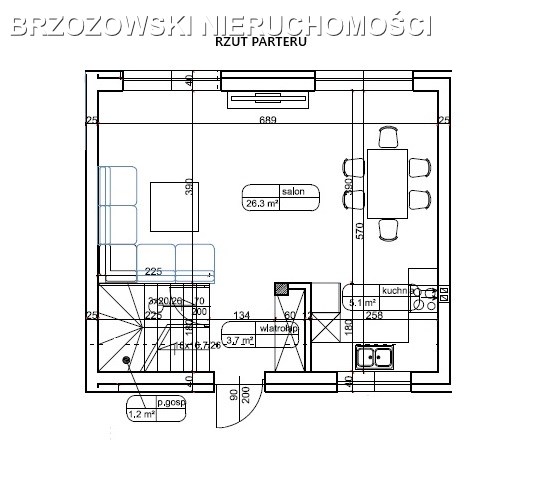
PARTER: salon (26,3 m2) z aneksem kuchennym (5,1 m2), wiatrołap (3,7 m2), pom. gospodarcze (1,3 m2).

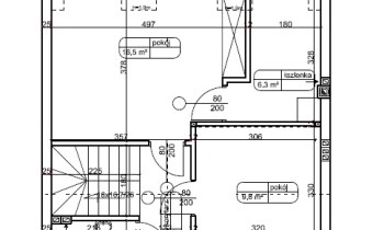
PIETRO I: 2 sypialnie (17,4 m2, 10,5 m2), w tym większa z własną łazienką (6,5 m2), łazienka (4,4 m2), korytarz, klatka schodowa.

PODDASZE
: 2 sypialnie (16,5 m2, 9,8 m2), w tym większa z własną łazienką (6,3 m2), łazienka (4,0 m2), korytarz, klatka schodowa.

Dwa miejsca postojowe zewnętrzne.
Media: gaz, prąd, wodociąg miejski.


Atuty nieruchomości:
- owoczesna architektura i wysoka jakość wykonania,
- uże przeszklenia zapewniające naturalne doświetlenie,
- gródek idealny do wypoczynku i zabaw dla dzieci,
- grzewanie podłogowe.

Segment zlikalizowany jest w spokojnej okolicy, w pobliżu szkoła podstawowa, przedszkole oraz żłobek
Do przystanków komunikacji miejskiej można dojść w kilka minut, co ułatwia codzienne dojazdy do centrum miasta.
Dogodny dojazd do południowej obwodnicy Warszawy.

Nota prawna

Prezentowane ogłoszenie nie stanowi oferty w rozumieniu art. 66 Kodeksu Cywilnego. Dokładamy wszelkich starań, aby informacje dotyczące oferowanych nieruchomości były w miarę możliwości dokładne i aktualne. Ponieważ jednak z różnych powodów nie zawsze dają się zweryfikować, firma Brzozowski Nieruchomości nie ponosi odpowiedzialności za ich dokładność i aktualność.

Szczegóły oferty

Symbol oferty BRZ-DS-163708
Powierzchnia 120,00 m²
Powierzchnia działki 200 m²
Liczba pokoi 5
Rodzaj domu segment środkowy
Technologia budowlana porotherm
Wymiary działki m
Garaż miejsce postojowe
Stan prawny Własność
Stan budynku do wykończenia
Rok budowy 2025
Gaz jest
Woda tak - miejska
Prąd jest
Kanalizacja szambo

Kalkulator kredytowy

PLN
%
Wysokość raty

Kalkulator kosztów

PLN
PLN
PLN
PLN
PLN
PLN
%
PLN
Podatek od czynności cywilno-prawnych
Taksa notarialna (opłata notarialna)
VAT od taksy notarialnej (opłaty notarialnej)
Wniosek do WKW
VAT od wniosku do WKW
Prowizja agencji nieruchomości
VAT od prowizji agencji nieruchomości
Wypisy aktu notarialnego - około
RAZEM (cena + opłaty)

Podobne oferty

dom na sprzedaż - Warszawa, Praga-Południe, Spalinowa

dom na sprzedaż

Warszawa, Praga-Południe, Spalinowa
4 pokoje 160,00 m2 7 650,00 zł/m2
dom na sprzedaż - Warszawa, Wawer, Falenica

dom na sprzedaż

Warszawa, Wawer, Falenica
6 pokoi 230,00 m2 6 739,13 zł/m2
dom na sprzedaż - Warszawa, Wawer, Zerzeń

dom na sprzedaż

Warszawa, Wawer, Zerzeń
5 pokoi 173,97 m2 9 771,80 zł/m2
dom na sprzedaż - Warszawa, Białołęka, Brzeziny

dom na sprzedaż

Warszawa, Białołęka, Brzeziny
4 pokoje 144,00 m2 7 569,44 zł/m2

Napisz do nas

Proszę wypełnić to pole
Proszę wypełnić to pole
Proszę wypełnić to pole
Proszę wypełnić to pole
Trwa wysyłanie...

Ta strona wykorzystuje pliki cookies w celach statystycznych oraz w celu dostosowania naszych serwisów do indywidualnych potrzeb klientów. Zmiany ustawień dotyczących plików cookie można dokonać w dowolnej chwili modyfikując ustawienia przeglądarki. Korzystanie z tej strony bez zmian ustawień dotyczących cookies oznacza, że będą one zapisane w pamięci urządzenia.

rozumiem