Warszawa, Praga-Południe, Saska Kępa

Dom na sprzedaż

Opis nieruchomości

Ul. ALZACKA /ZŁOCZOWSKA / BRUKSELSKA.


Dom w zabudowie szeregowej o całkowitej powierzchni 236 m2, /4 kondygnacje/ na Saskiej Kępie, z 1998 r., na działce o pow. 249 m2.

Budynek jest zlokalizowany
przy cichej, klimatycznej uliczce w pobliżu ulicy Alzackiej / Brukselskiej.

Pod inwestycję.
Wynajęty na czas nieokreślony z 3-miesięcznym okresem wypowiedzenia.
Dom jest podzielony na 6 jednostek, które są wynajęte, dodatkowo piwnica.


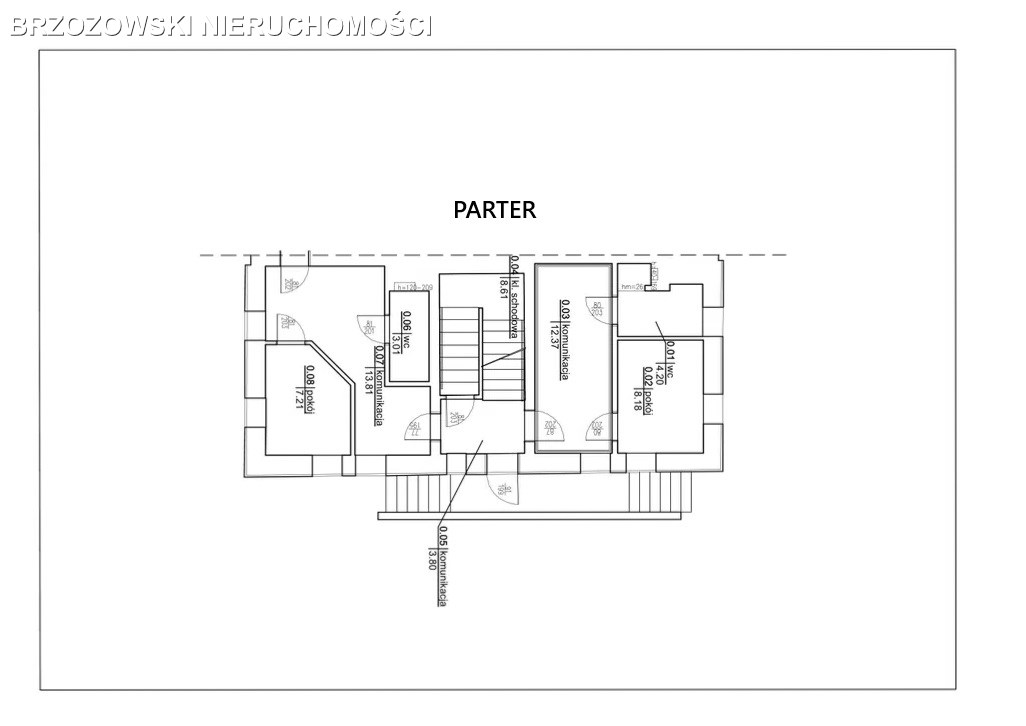
PARTER (48,78 m2): dwa niezależne wejścia, podzielony na dwie części (24,03 m2, 24,75 m2), pierwsza część - pokój, komunikacja, WC, druga część - pokój, komunikacja, WC.

PIĘTRO (63,79 m2): klatka schodowa, dwie części (24,47 m2, 25,11 m2): pierwsza - pokój, WC, druga część - pokój, WC.

PODDASZE (62,47 m2): klatka schodowa, dwie części (23,51 m2, 24,09 m2): pierwsza - pokój, WC, druga - pokój WC.

PIWNICA (61,11 m2): dwa pomieszczenia (24,75 m2, 20,13 m2 m2), WC, klatka schodowa,  komunikacja.

Działka stanowi przedmiot własności.

W budynku jest ogrzewanie gazowe.

Miejsca parkingowe na terenie nieruchomości.

 

Nota prawna

Prezentowane ogłoszenie nie stanowi oferty w rozumieniu art. 66 Kodeksu Cywilnego. Dokładamy wszelkich starań, aby informacje dotyczące oferowanych nieruchomości były w miarę możliwości dokładne i aktualne. Ponieważ jednak z różnych powodów nie zawsze dają się zweryfikować, firma Brzozowski Nieruchomości nie ponosi odpowiedzialności za ich dokładność i aktualność.

Szczegóły oferty

Symbol oferty BRZ-DS-163846
Powierzchnia 236,00 m²
Powierzchnia użytkowa 175,00 m²
Powierzchnia działki 249 m²
Liczba pokoi 6
Rodzaj domu bliźniak
Technologia budowlana cegła
Wymiary działki m
Garaż miejsce postojowe
Stan prawny Własność
Okna PCV
Stan budynku do zamieszkania
Rok budowy 1998
Gaz jest
Woda ciepła - miejska
Prąd jest
Kanalizacja miejska

Kalkulator kredytowy

PLN
%
Wysokość raty

Kalkulator kosztów

PLN
PLN
PLN
PLN
PLN
PLN
%
PLN
Podatek od czynności cywilno-prawnych
Taksa notarialna (opłata notarialna)
VAT od taksy notarialnej (opłaty notarialnej)
Wniosek do WKW
VAT od wniosku do WKW
Prowizja agencji nieruchomości
VAT od prowizji agencji nieruchomości
Wypisy aktu notarialnego - około
RAZEM (cena + opłaty)

Podobne oferty

dom na sprzedaż - Warszawa, Praga-Południe, Saska Kępa, Rzymska

dom na sprzedaż

Warszawa, Praga-Południe, Saska Kępa, Rzymska
6 pokoi 295,00 m2 11 864,41 zł/m2
dom na sprzedaż - Warszawa, Białołęka

dom na sprzedaż

Warszawa, Białołęka
6 pokoi 568,00 m2 6 161,97 zł/m2
dom na sprzedaż - Warszawa, Bemowo

dom na sprzedaż

Warszawa, Bemowo
19 pokoi 250,00 m2 10 000,00 zł/m2
dom na sprzedaż - Warszawa, Białołęka, Grodzisk

dom na sprzedaż

Warszawa, Białołęka, Grodzisk
6 pokoi 237,11 m2 14 583,95 zł/m2

Napisz do nas

Proszę wypełnić to pole
Proszę wypełnić to pole
Proszę wypełnić to pole
Proszę wypełnić to pole
Trwa wysyłanie...

Ta strona wykorzystuje pliki cookies w celach statystycznych oraz w celu dostosowania naszych serwisów do indywidualnych potrzeb klientów. Zmiany ustawień dotyczących plików cookie można dokonać w dowolnej chwili modyfikując ustawienia przeglądarki. Korzystanie z tej strony bez zmian ustawień dotyczących cookies oznacza, że będą one zapisane w pamięci urządzenia.

rozumiem