Warszawa, Wawer, Falenica

Działka na sprzedaż

Opis nieruchomości

Obsługą transakcji zajmuje się pośrednik geodeta z 25-letnim doświadczeniem w branży nieruchomości.

Na sprzedaż działka budowlana o powierzchni 1980 m2, zlokalizowana w Wawrze (Falenica).

Wymiary: 43 m x 49,5 m.
Media: kanalizacja, wodociąg, gaz i prąd, w ulicy przy działce.


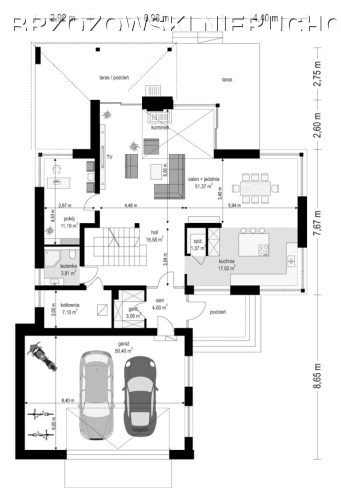
Wydane Pozwolenie na budowę budynku jednorodzinnego wolnostojącego (2025 r., na podstawie WZ).

Parametry budynku:
- budynek dwukondygnacyjny,
- powierzchnia użytkowa domu 195 m2,
- 4 sypialnie + salon,
- garaż dwustanowiskowy,
- wysokość budynku 9,22 m z podmurówką,
- uzgodnione przyłączenie wszystkich mediów miejskich,
- wykonana studnia dla potrzeb budowy.

W sąsiedztwie nowe domy wolnostojące.
Dużo zieleni i cisza.

Dojazd do działki ulicą wyłożoną kostką.
Do stacji SKM Falenica ok. 1km.
W pobliżu przystanek autobusowy (3 linie BUS).
W okolicy pełna infrastruktura.

Nota prawna

Prezentowane ogłoszenie nie stanowi oferty w rozumieniu art. 66 Kodeksu Cywilnego. Dokładamy wszelkich starań, aby informacje dotyczące oferowanych nieruchomości były w miarę możliwości dokładne i aktualne. Ponieważ jednak z różnych powodów nie zawsze dają się zweryfikować, firma Brzozowski Nieruchomości nie ponosi odpowiedzialności za ich dokładność i aktualność.

Szczegóły oferty

Symbol oferty BRZ-GS-164034
Powierzchnia 1 980,00 m²
Przeznaczenie działki budowlana
Wymiary działki 43 x 49,5 m
Stan prawny własność
Gaz jest
Woda tak - miejska
Dojazd kostka brukowa
Prąd jest
Kanalizacja tak

Kalkulator kredytowy

PLN
%
Wysokość raty

Kalkulator kosztów

PLN
PLN
PLN
PLN
PLN
PLN
%
PLN
Podatek od czynności cywilno-prawnych
Taksa notarialna (opłata notarialna)
VAT od taksy notarialnej (opłaty notarialnej)
Wniosek do WKW
VAT od wniosku do WKW
Prowizja agencji nieruchomości
VAT od prowizji agencji nieruchomości
Wypisy aktu notarialnego - około
RAZEM (cena + opłaty)

Podobne oferty

działka na sprzedaż - Warszawa, Włochy

działka na sprzedaż

Warszawa, Włochy
  1 189,00 m2 1 499,58 zł/m2
działka na sprzedaż - Warszawa, Praga-Południe, Gocławek

działka na sprzedaż

Warszawa, Praga-Południe, Gocławek
  501,00 m2 3 790,42 zł/m2
działka na sprzedaż - Warszawa, Mokotów, Augustówka

działka na sprzedaż

Warszawa, Mokotów, Augustówka
  1 380,00 m2 850,00 zł/m2
działka na sprzedaż - Warszawa, Ursynów, Arbuzowa

działka na sprzedaż

Warszawa, Ursynów, Arbuzowa
  499,00 m2 2 404,81 zł/m2

Napisz do nas

Proszę wypełnić to pole
Proszę wypełnić to pole
Proszę wypełnić to pole
Proszę wypełnić to pole
Trwa wysyłanie...

Ta strona wykorzystuje pliki cookies w celach statystycznych oraz w celu dostosowania naszych serwisów do indywidualnych potrzeb klientów. Zmiany ustawień dotyczących plików cookie można dokonać w dowolnej chwili modyfikując ustawienia przeglądarki. Korzystanie z tej strony bez zmian ustawień dotyczących cookies oznacza, że będą one zapisane w pamięci urządzenia.

rozumiem