Grodzisk Mazowiecki

Działka na sprzedaż

Opis nieruchomości


Obsługą transakcji zajmuje się pośrednik geodeta z 25-letnim doświadczeniem w branży nieruchomości.

Oferujemy do sprzedaży działkę inwestycyjną o powierzchni 2210 m2, zlokalizowaną w Grodzisku Mazowieckim.
W bezpośrednim sąsiedztwie osiedla nowych segmentów.

Wymiary: 42,5 m x 43 m x 59 m x 15 m x 20 x 43 m.
Media: wszystkie media miejskie, w ulicy przy działce.

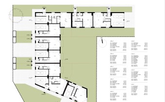
Przygotowana dokumentacja do złożenia wniosku o wydanie pozwolenia na budowę zespołu dziewięciu segmentów.
Możliwość uzyskania PnB na podstawie przygotowanego projektu.

Parametry inwestycji:
- 9 segmentów w zwartej zabudowie (3 budynki dwulokalowe i jeden jednolokalowy) o powierzchni od 147 m2 do 185 m2,
- segmenty 3-kondygnacyjne: parter, piętro i poddasze użytkowe (z klatką schodową),
- każdy segment z garażem, dodatkowo zewnętrzne miejsce parkingowe,
- w każdym segmencie 3 sypialnie, 1 segment z 4 sypialniami,
- łączna powierzchnia wynosi 1431,53 m2,
- podłączenie do mediów miejskich,
- niezależny dojazd do poszczególnych segmentów (z trzech ulic).


Dokładna specyfikacja zaprojektowanych lokali dla zainteresowanych klientów.

Projekt został przygotowany na podstawie Miejscowego planu zagospodarowania przestrzennego.


Cena obejmuje projekt architektoniczno-budowlany.

Lokalizacja
- w pobliżu przystanek komunikacji miejskiej (ok. 350 m),
- blisko do przejadu tunelem pod torami,
- do centrum Grodziska ok. 1,5 km.

Pozyższa cena nie zawiera projektu i PnB.

Nota prawna

Prezentowane ogłoszenie nie stanowi oferty w rozumieniu art. 66 Kodeksu Cywilnego. Dokładamy wszelkich starań, aby informacje dotyczące oferowanych nieruchomości były w miarę możliwości dokładne i aktualne. Ponieważ jednak z różnych powodów nie zawsze dają się zweryfikować, firma Brzozowski Nieruchomości nie ponosi odpowiedzialności za ich dokładność i aktualność.

Szczegóły oferty

Symbol oferty BRZ-GS-163674
Powierzchnia 2 210,00 m²
Przeznaczenie działki inwestycyjna
Wymiary działki 42,5 x 43 x 59 x 15 x 20 x 43 m
Stan prawny własność
Gaz jest
Woda tak - miejska
Dojazd asfalt
Prąd jest
Kanalizacja tak

Kalkulator kredytowy

PLN
%
Wysokość raty

Kalkulator kosztów

PLN
PLN
PLN
PLN
PLN
PLN
%
PLN
Podatek od czynności cywilno-prawnych
Taksa notarialna (opłata notarialna)
VAT od taksy notarialnej (opłaty notarialnej)
Wniosek do WKW
VAT od wniosku do WKW
Prowizja agencji nieruchomości
VAT od prowizji agencji nieruchomości
Wypisy aktu notarialnego - około
RAZEM (cena + opłaty)

Podobne oferty

działka na sprzedaż - Grodzisk Mazowiecki

działka na sprzedaż

Grodzisk Mazowiecki
  2 700,00 m2 850,00 zł/m2

Napisz do nas

Proszę wypełnić to pole
Proszę wypełnić to pole
Proszę wypełnić to pole
Proszę wypełnić to pole
Trwa wysyłanie...

Ta strona wykorzystuje pliki cookies w celach statystycznych oraz w celu dostosowania naszych serwisów do indywidualnych potrzeb klientów. Zmiany ustawień dotyczących plików cookie można dokonać w dowolnej chwili modyfikując ustawienia przeglądarki. Korzystanie z tej strony bez zmian ustawień dotyczących cookies oznacza, że będą one zapisane w pamięci urządzenia.

rozumiem