Łomianki

Działka na sprzedaż

Opis nieruchomości

Obsługą transakcji zajmuje się pośrednik geodeta z 25-letnim doświadczeniem w branży nieruchomości. 
 
Na sprzedaż działka inwestycyjna o powierzchni 1531 m2, zlokalizowana w Łomiankach pomiędzy ulicami Warszawską i Łąkową.
Wokół zabudowa mieszana, w tym nowe osiedla segmentów.

Wymiary: 22,5 m x 66 m.
Mediawszystkie media miejskie.

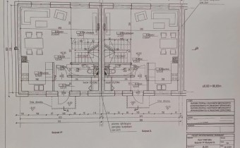
Wydane prawomocne pozwolenie na budowę 7 budynków mieszkalnych (segmentów).

Zespół 3 oraz 4 budynków w zabudowie szeregowej, o powierzchni użytkowej ok. 110 m2 każdy.
Rozkład: salon, kuchnia, trzy sypialnie (na piętrze), dwie łazienki, poddasze do zaadoptowania (dodatkowa sypialnia + łazienka).
Do każdego segmentu dwa miejsca postojowe zewnętrzne.

Na działce prąd (przydział mocy to 66kW), przyłącze gazu w trakcie projektowanie, warunki wodno-kanalizacyjne.


Pozwolenie na budowę wydane na podstawie MPZP.

Nota prawna

Prezentowane ogłoszenie nie stanowi oferty w rozumieniu art. 66 Kodeksu Cywilnego. Dokładamy wszelkich starań, aby informacje dotyczące oferowanych nieruchomości były w miarę możliwości dokładne i aktualne. Ponieważ jednak z różnych powodów nie zawsze dają się zweryfikować, firma Brzozowski Nieruchomości nie ponosi odpowiedzialności za ich dokładność i aktualność.

Szczegóły oferty

Symbol oferty BRZ-GS-163631
Powierzchnia 1 531,00 m²
Przeznaczenie działki mieszkaniowa, inwestycyjna, budowlana
Wymiary działki 22,5 x 66 m
Stan prawny własność
Gaz w ulicy
Woda w ulicy
Dojazd asfalt
Prąd w ulicy
Kanalizacja w ulicy

Kalkulator kredytowy

PLN
%
Wysokość raty

Kalkulator kosztów

PLN
PLN
PLN
PLN
PLN
PLN
%
PLN
Podatek od czynności cywilno-prawnych
Taksa notarialna (opłata notarialna)
VAT od taksy notarialnej (opłaty notarialnej)
Wniosek do WKW
VAT od wniosku do WKW
Prowizja agencji nieruchomości
VAT od prowizji agencji nieruchomości
Wypisy aktu notarialnego - około
RAZEM (cena + opłaty)

Podobne oferty

działka na sprzedaż - Łomianki, Dąbrowa Leśna

działka na sprzedaż

Łomianki, Dąbrowa Leśna
  1 619,00 m2 1 204,45 zł/m2
działka na sprzedaż - Łomianki

działka na sprzedaż

Łomianki
  5 186,00 m2 424,22 zł/m2

Napisz do nas

Proszę wypełnić to pole
Proszę wypełnić to pole
Proszę wypełnić to pole
Proszę wypełnić to pole
Trwa wysyłanie...

Ta strona wykorzystuje pliki cookies w celach statystycznych oraz w celu dostosowania naszych serwisów do indywidualnych potrzeb klientów. Zmiany ustawień dotyczących plików cookie można dokonać w dowolnej chwili modyfikując ustawienia przeglądarki. Korzystanie z tej strony bez zmian ustawień dotyczących cookies oznacza, że będą one zapisane w pamięci urządzenia.

rozumiem