Warszawa, Mokotów, Ksawerów

Lokal na sprzedaż

Opis nieruchomości

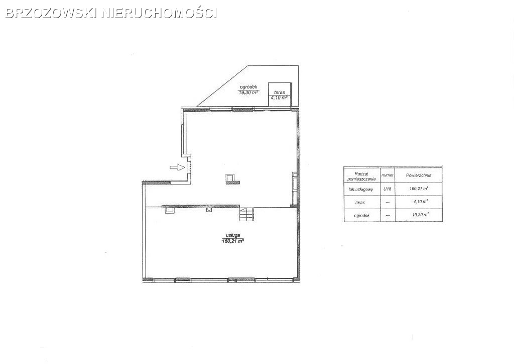
Oferujemy do sprzedaży lokal biurowo-usługowy o powierzchni 160,21 m2, położony na parterze budynku zlokalizowanym na Mokotowie (Ksawerów), w rejonie ulic Domaniewska, Wołoska.
 
Lokal obecnie wykorzystywany jest na cele biurowe. 


Taras - 4,10 m2.
Ogródek - 19,30 m2.

Lokal wyposażony jest w: klimatyzację, wentylację, sieć komputerową, alarm, monitoring video.

Istnieje możliwość dokupienia do 9 miejsc postojowych w garażu podziemnym,  w cenie 72 500 zł za jedno (nabycie z podatkiem PCC - 2%).

Dwie komórki lokatorskie - w cenie 30 000 zł brutto za każdą.

Do podanej ceny za lokal należy doliczyć podatek VAT (23 %).

 

Nota prawna

Prezentowane ogłoszenie nie stanowi oferty w rozumieniu art. 66 Kodeksu Cywilnego. Dokładamy wszelkich starań, aby informacje dotyczące oferowanych nieruchomości były w miarę możliwości dokładne i aktualne. Ponieważ jednak z różnych powodów nie zawsze dają się zweryfikować, firma Brzozowski Nieruchomości nie ponosi odpowiedzialności za ich dokładność i aktualność.

Szczegóły oferty

Symbol oferty BRZ-LS-164017
Powierzchnia 160,00 m²
Piętro parter
Rodzaj lokalu jednopoziomowy
Przeznaczenie lokalu usługowy, biurowy

Kalkulator kredytowy

PLN
%
Wysokość raty

Kalkulator kosztów

PLN
PLN
PLN
PLN
PLN
PLN
%
PLN
Podatek od czynności cywilno-prawnych
Taksa notarialna (opłata notarialna)
VAT od taksy notarialnej (opłaty notarialnej)
Wniosek do WKW
VAT od wniosku do WKW
Prowizja agencji nieruchomości
VAT od prowizji agencji nieruchomości
Wypisy aktu notarialnego - około
RAZEM (cena + opłaty)

Podobne oferty

lokal na sprzedaż - Warszawa, Wola, Kolejowa

lokal na sprzedaż

Warszawa, Wola, Kolejowa
  97,10 m2 29 866,12 zł/m2
lokal na sprzedaż - Warszawa, Śródmieście, Powiśle

lokal na sprzedaż

Warszawa, Śródmieście, Powiśle
  147,80 m2 24 810,55 zł/m2
lokal na sprzedaż - Warszawa, Mokotów, Dolny Mokotów

lokal na sprzedaż

Warszawa, Mokotów, Dolny Mokotów
  213,00 m2 20 225,96 zł/m2
lokal na sprzedaż - Warszawa, Ursus, Edwarda Habicha

lokal na sprzedaż

Warszawa, Ursus, Edwarda Habicha
  184,41 m2 16 500,00 zł/m2

Napisz do nas

Proszę wypełnić to pole
Proszę wypełnić to pole
Proszę wypełnić to pole
Proszę wypełnić to pole
Trwa wysyłanie...

Ta strona wykorzystuje pliki cookies w celach statystycznych oraz w celu dostosowania naszych serwisów do indywidualnych potrzeb klientów. Zmiany ustawień dotyczących plików cookie można dokonać w dowolnej chwili modyfikując ustawienia przeglądarki. Korzystanie z tej strony bez zmian ustawień dotyczących cookies oznacza, że będą one zapisane w pamięci urządzenia.

rozumiem