Warszawa, Wilanów, Miasteczko Wilanów, Branickiego

Mieszkanie na sprzedaż

Opis nieruchomości

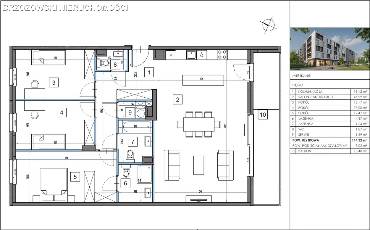
Mieszkanie o powierzchni 114,32 m2, 4-pokojowe, położone na 2. piętrze w 4-piętrowym budynku z 2025 r., zlokalizowanym w Miasteczku Wilanów przy ul. Branickiego.
Stan deweloperski
 
ROZKŁAD:  salon połączony z kuchnią (46,99 m2), z salonu wyjście na taras (13,48 m2), trzy sypialnie (17,47 m2, 13,17 m2, 13,00 m2), w tym największa z prywatną łazienką (4,37 m2), druga łazienka (4,64 m2), WC (1,87 m2), pomieszczenie gospodarcze (1,69 m2), komunikacja (11,12 m2).

Ekspozycja okien: salon na południowy-wschód, sypialnie północny-zachód.

Miejsce postojowe w garażu podziemnym oraz komórka lokatorska (1,5 m2) - dodatkowo płatne w kwocie 90 000 zł.

Nowa inwestycja YAREAL ENSO, wysoki standard, prywatna siłownia na wyłączność dla mieszkańców.
Mieszkanie jest już oddane do użytku. Jest całkowicie spłacone.

 

Nota prawna

Prezentowane ogłoszenie nie stanowi oferty w rozumieniu art. 66 Kodeksu Cywilnego. Dokładamy wszelkich starań, aby informacje dotyczące oferowanych nieruchomości były w miarę możliwości dokładne i aktualne. Ponieważ jednak z różnych powodów nie zawsze dają się zweryfikować, firma Brzozowski Nieruchomości nie ponosi odpowiedzialności za ich dokładność i aktualność.

Szczegóły oferty

Symbol oferty BRZ-MS-163781
Powierzchnia 114,32 m²
Powierzchnia użytkowa 114,32 m²
Powierzchnia balkonów/tarasów 13,48 m²
Liczba pokoi 4
Piętro 2
Rodzaj budynku apartamentowiec
Technologia budowlana mieszana
Liczba pięter w budynku 4
Stan lokalu deweloperski
Stan prawny Własność
Balkon jest
Rok budowy 2025
Ogrzewanie centralne
Winda tak

Pomieszczenia

Powierzchnia pokoi  m2

Kalkulator kredytowy

PLN
%
Wysokość raty

Kalkulator kosztów

PLN
PLN
PLN
PLN
PLN
PLN
%
PLN
Podatek od czynności cywilno-prawnych
Taksa notarialna (opłata notarialna)
VAT od taksy notarialnej (opłaty notarialnej)
Wniosek do WKW
VAT od wniosku do WKW
Prowizja agencji nieruchomości
VAT od prowizji agencji nieruchomości
Wypisy aktu notarialnego - około
RAZEM (cena + opłaty)

Podobne oferty

mieszkanie na sprzedaż - Warszawa, Włochy, Wyrzyska

mieszkanie na sprzedaż

Warszawa, Włochy, Wyrzyska
5 pokoi 189,00 m2 15 132,28 zł/m2
mieszkanie na sprzedaż - Warszawa, Śródmieście, Poznańska

mieszkanie na sprzedaż

Warszawa, Śródmieście, Poznańska
4 pokoje 78,50 m2 32 484,08 zł/m2
mieszkanie na sprzedaż - Warszawa, Wola, Łucka

mieszkanie na sprzedaż

Warszawa, Wola, Łucka
4 pokoje 106,00 m2 23 000,00 zł/m2
mieszkanie na sprzedaż - Warszawa, Śródmieście, Stare Miasto, Miodowa

mieszkanie na sprzedaż

Warszawa, Śródmieście, Stare Miasto, Miodowa
4 pokoje 56,20 m2 30 480,43 zł/m2

Napisz do nas

Proszę wypełnić to pole
Proszę wypełnić to pole
Proszę wypełnić to pole
Proszę wypełnić to pole
Trwa wysyłanie...

Ta strona wykorzystuje pliki cookies w celach statystycznych oraz w celu dostosowania naszych serwisów do indywidualnych potrzeb klientów. Zmiany ustawień dotyczących plików cookie można dokonać w dowolnej chwili modyfikując ustawienia przeglądarki. Korzystanie z tej strony bez zmian ustawień dotyczących cookies oznacza, że będą one zapisane w pamięci urządzenia.

rozumiem