Warszawa, Wawer, Zerzeń

Działka na sprzedaż

Opis nieruchomości

Obsługą transakcji zajmuje się pośrednik geodeta z 25-letnim doświadczeniem w branży nieruchomości. 

Do sprzedaży teren inwestycyjny o powierzchni 2900 m2 w Wawrze (Zerzeń).

Wymiary: 73 m x 40 m.
Media: prąd i gaz w drodze przy działce, wodociąg i kanalizacja w trakcie projektowania.

Działka w bardzo ładnej lokalizacji, w otoczeniu lasu sosnowego, z dogodnym dostępem do komunikacji miejskiej, z wygodnym dojazdem do tras komunikacyjnych.

W bezpośrednim sąsiedztwie zabudowa rezydencjonalna.

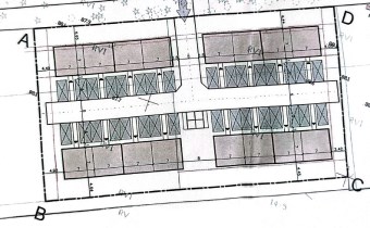
Dla działki wydana Decyzja o warunkach zabudowy na budowę 8 domów jednorodzinnych w zabudowie bliźniaczej, dwulokalowych (16 jednostek).

Jest już gotowy projekt architektoniczny do złożenia wniosku o PnB (badania geologiczne, wyłączenie z produkcji rolnej).


Parametry zabudowy:
- wskaźnik intensywności zabudowy 0,84,
- wskaźnik wielkości powierzchni zabudowy 0,28,
- powierzchnia biologicznie czynna 54%,
- wysokość zabudowy do 11,5 m,
- możliwość podłączenia budynków do kanalizacji i wodociągu.

Do podanej ceny należy doliczyć podatek VAT.

Nota prawna

Prezentowane ogłoszenie nie stanowi oferty w rozumieniu art. 66 Kodeksu Cywilnego. Dokładamy wszelkich starań, aby informacje dotyczące oferowanych nieruchomości były w miarę możliwości dokładne i aktualne. Ponieważ jednak z różnych powodów nie zawsze dają się zweryfikować, firma Brzozowski Nieruchomości nie ponosi odpowiedzialności za ich dokładność i aktualność.

Szczegóły oferty

Symbol oferty BRZ-GS-163941
Powierzchnia 2 900,00 m²
Przeznaczenie działki mieszkaniowa, budowlana, inwestycyjna
Wymiary działki 73 x 40 m
Stan prawny własność
Gaz w ulicy
Woda w trakcie prowadzenia
Dojazd kostka brukowa
Prąd w ulicy
Kanalizacja w trakcie prowadzenia

Kalkulator kredytowy

PLN
%
Wysokość raty

Kalkulator kosztów

PLN
PLN
PLN
PLN
PLN
PLN
%
PLN
Podatek od czynności cywilno-prawnych
Taksa notarialna (opłata notarialna)
VAT od taksy notarialnej (opłaty notarialnej)
Wniosek do WKW
VAT od wniosku do WKW
Prowizja agencji nieruchomości
VAT od prowizji agencji nieruchomości
Wypisy aktu notarialnego - około
RAZEM (cena + opłaty)

Podobne oferty

działka na sprzedaż - Warszawa, Ursynów, Jeziorki

działka na sprzedaż

Warszawa, Ursynów, Jeziorki
  7 600,00 m2 650,00 zł/m2
działka na sprzedaż - Warszawa, Bielany

działka na sprzedaż

Warszawa, Bielany
  5 242,00 m2 934,76 zł/m2
działka na sprzedaż - Warszawa, Włochy

działka na sprzedaż

Warszawa, Włochy
  1 853,00 m2 2 158,66 zł/m2
działka na sprzedaż - Warszawa, Wilanów

działka na sprzedaż

Warszawa, Wilanów
  4 521,00 m2 942,27 zł/m2

Napisz do nas

Proszę wypełnić to pole
Proszę wypełnić to pole
Proszę wypełnić to pole
Proszę wypełnić to pole
Trwa wysyłanie...

Ta strona wykorzystuje pliki cookies w celach statystycznych oraz w celu dostosowania naszych serwisów do indywidualnych potrzeb klientów. Zmiany ustawień dotyczących plików cookie można dokonać w dowolnej chwili modyfikując ustawienia przeglądarki. Korzystanie z tej strony bez zmian ustawień dotyczących cookies oznacza, że będą one zapisane w pamięci urządzenia.

rozumiem