Obsługą transakcji zajmuje się pośrednik geodeta z 25-letnim doświadczeniem w branży nieruchomości.
Do sprzedaży działka budowlana o powierzchni 658 m2, zlokalizowana na Bielanach, na granicy z Żoliborzem (Marymont-Kaskada).
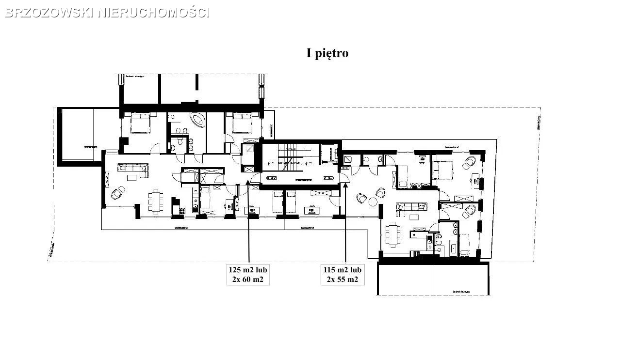
Dla działki przygotowanywany jest projekt budynku wielorodzinnego (willa miejska), obejmujący 7 lokali mieszkalnych o łącznej powierzchni 694 m2, plus garaż wielostanowiskowy.
Będzie złożony wniosek o PnB.
Istnieje możliwość nabycia działki sąsiedniej o podobnej powierzchni.
Wymiary: 14,5 m x 45 m.
Media: wszystkie media miejskie w ulicy przy działce.
Prezentowane ogłoszenie nie stanowi oferty w rozumieniu art. 66 Kodeksu Cywilnego. Dokładamy wszelkich starań, aby informacje dotyczące oferowanych nieruchomości były w miarę możliwości dokładne i aktualne. Ponieważ jednak z różnych powodów nie zawsze dają się zweryfikować, firma Brzozowski Nieruchomości nie ponosi odpowiedzialności za ich dokładność i aktualność.